Mehr anzeigen zum Thema Beschreibung Beschreibung
MODERNES WOHNEN IN RHEINHEIM – DIREKT AN DER RHEINPROMENADE
Das Projekt “Rheinpromenade-Wohnen” bietet exklusives Wohnen direkt am Ufer des Hochrheins. Dieses moderne Mehrfamilienhaus umfasst 13 Wohneinheiten, die sowohl für junge Paare als auch für Senioren konzipiert wurden. Die Lage unmittelbar am Rhein und nahe der Schweizer Grenze bietet eine perfekte Kombination aus naturnahen Erholungsmöglichkeiten und einer hervorragenden Anbindung für Pendler.
Das Projekt besticht durch moderne Architektur, den höchsten Wohnkomfort in einer ruhigen und malerischen Umgebung bietet.
Jede Wohneinheit profitiert zudem von einer umfassenden KfW-Sanierung, was für eine nachhaltige und energieeffiziente Bauweise sorgt. Käufer können einen KfW-Zuschuss von etwa 69.000,00 € je Wohneinheit in Anspruch nehmen, was dieses Angebot besonders attraktiv macht.
Mit dem “Rheinpromenade-Wohnen” finden Sie ein Zuhause, das stilvolle, moderne Architektur mit der Schönheit der Natur und praktischen Vorzügen der Grenznähe zur Schweiz vereint. Alle Wohneinheiten stehen zum Verkauf und bieten eine einzigartige Gelegenheit, sich in dieser begehrten Lage niederzulassen.
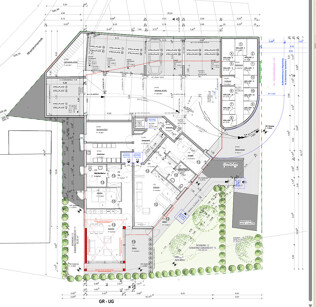
13 Wohnungen mit Rheinblick – Wohnungsgröße zwischen 64 m² – 122 m²
Bezugsfertig ab: Q4, 2025
www.rheinpromenade-wohnen.de
Gerne können Sie uns für weitere Informationen und einen Beratungstermin kontaktieren!
Wir freuen uns auf Sie!
Das Projekt “Rheinpromenade-Wohnen” bietet exklusives Wohnen direkt am Ufer des Hochrheins. Dieses moderne Mehrfamilienhaus umfasst 13 Wohneinheiten, die sowohl für junge Paare als auch für Senioren konzipiert wurden. Die Lage unmittelbar am Rhein und nahe der Schweizer Grenze bietet eine perfekte Kombination aus naturnahen Erholungsmöglichkeiten und einer hervorragenden Anbindung für Pendler.
Das Projekt besticht durch moderne Architektur, den höchsten Wohnkomfort in einer ruhigen und malerischen Umgebung bietet.
Jede Wohneinheit profitiert zudem von einer umfassenden KfW-Sanierung, was für eine nachhaltige und energieeffiziente Bauweise sorgt. Käufer können einen KfW-Zuschuss von etwa 69.000,00 € je Wohneinheit in Anspruch nehmen, was dieses Angebot besonders attraktiv macht.
Mit dem “Rheinpromenade-Wohnen” finden Sie ein Zuhause, das stilvolle, moderne Architektur mit der Schönheit der Natur und praktischen Vorzügen der Grenznähe zur Schweiz vereint. Alle Wohneinheiten stehen zum Verkauf und bieten eine einzigartige Gelegenheit, sich in dieser begehrten Lage niederzulassen.
13 Wohnungen mit Rheinblick – Wohnungsgröße zwischen 64 m² – 122 m²
Bezugsfertig ab: Q4, 2025
www.rheinpromenade-wohnen.de
Gerne können Sie uns für weitere Informationen und einen Beratungstermin kontaktieren!
Wir freuen uns auf Sie!
Mehr anzeigen zum Thema Ausstattung Ausstattung
DIE HIGHLIGHTS – RHEINPROMENADE WOHNEN
> Harmonisches Wohnumfeld
> Malerisch am Wasser gelegen
> Umgeben von Natur
> Optimale Verkehrsanbindung
> Niedrigste Energiekosten
> 5 Jahre Gewährleistung
> Provisionsfrei
> Stadtnah
> Verschiedene Wohnraumoptionen
> Hohe Energieeffizienz auf Grund ökologischer Bauweise
OBJEKTDATEN
> 13 Wohnungen
> 64 – 122 m² je Wohnung
> Bezugsfertig ab: Q4, 2025
> Barrierefrei mit Lift
> Effizienzhaus 40 (EH40NH)
> KFW-Zuschuss in Höhe von 69.000€ je Wohneinheit.
> inklusiv einem Küchengutschein im Wert von 20.000 Euro.
> Tiefgarage (Doppelparker) & Stellplätze
> Harmonisches Wohnumfeld
> Malerisch am Wasser gelegen
> Umgeben von Natur
> Optimale Verkehrsanbindung
> Niedrigste Energiekosten
> 5 Jahre Gewährleistung
> Provisionsfrei
> Stadtnah
> Verschiedene Wohnraumoptionen
> Hohe Energieeffizienz auf Grund ökologischer Bauweise
OBJEKTDATEN
> 13 Wohnungen
> 64 – 122 m² je Wohnung
> Bezugsfertig ab: Q4, 2025
> Barrierefrei mit Lift
> Effizienzhaus 40 (EH40NH)
> KFW-Zuschuss in Höhe von 69.000€ je Wohneinheit.
> inklusiv einem Küchengutschein im Wert von 20.000 Euro.
> Tiefgarage (Doppelparker) & Stellplätze
Mehr anzeigen zum Thema Lage Lage
Rheinheim ist ein Ortsteil der baden-württembergischen Gemeinde Küssaberg im Landkreis Waldshut.
Mit knapp 1500 Einwohnern ist Rheinheim der zweitgrößte Ort der Gemeinde Küssaberg. Neben dem hier ansässigen Rathaus bietet die direkt am Rhein gelegene Ortschaft seinen Anwohnern alles für den täglichen Bedarf. Verschiedene Einkaufsmöglichkeiten und die zentrale Lage zu den anderen Ortschaften und der Schweiz machen das Leben hier für viele sehr attraktiv
Rheinheim bietet ideale Voraussetzungen für Pendler und Grenzgänger in die Schweiz.
Der Grenzübergang zur Schweiz / Bad Zurzach ist nur 600 m entfernt. Die direkte Zuganbindung nach Baden, Bülach, Koblenz befindet sich nur 1,2 km vom Neubauprojekt entfernt und ist auch zu Fuß gut erreichbar.
Mit dem Auto erreichen Sie den in 35 km entfernten Flughafen Zürich in ca. 30 Min.
Mit knapp 1500 Einwohnern ist Rheinheim der zweitgrößte Ort der Gemeinde Küssaberg. Neben dem hier ansässigen Rathaus bietet die direkt am Rhein gelegene Ortschaft seinen Anwohnern alles für den täglichen Bedarf. Verschiedene Einkaufsmöglichkeiten und die zentrale Lage zu den anderen Ortschaften und der Schweiz machen das Leben hier für viele sehr attraktiv
Rheinheim bietet ideale Voraussetzungen für Pendler und Grenzgänger in die Schweiz.
Der Grenzübergang zur Schweiz / Bad Zurzach ist nur 600 m entfernt. Die direkte Zuganbindung nach Baden, Bülach, Koblenz befindet sich nur 1,2 km vom Neubauprojekt entfernt und ist auch zu Fuß gut erreichbar.
Mit dem Auto erreichen Sie den in 35 km entfernten Flughafen Zürich in ca. 30 Min.
Mehr anzeigen zum Thema Sonstige Angaben Sonstige Angaben
Widerrufsrecht:
Sie können Ihre Vertragserklärung innerhalb von 14 Tagen ohne Angabe von Gründen in Textform (z.B. Brief, Fax, E-Mail) widerrufen.
Die Frist beginnt nach Erhalt dieser Belehrung in Textform, jedoch nicht vor Vertragsabschluss und auch nicht vor Erfüllung unserer
Informationspflichten gem. Art. 246 § 2 in Verbindung mit § 1 Abs. 1 und 2 EGBGB. Zur Wahrung der Widerrufsfrist genügt die rechtzeitige Absendung des Widerrufs.
Der Widerruf ist zu richten an:
Volksbank Immobilien eG, Hauptstraße 78, 79761 Waldshut-Tiengen, Tel. 07741-80 96 99 – 0
E-Mail info@voba-immo.net
Widerrufsfolgen:
Im Falle eines wirksamen Widerrufs sind die beiderseits empfangener Leistungen zurückzugewähren und ggf. gezogene Nutzungen (z.B. Zinsen) herauszugeben. Können Sie uns die empfangene Leistung sowie Nutzungen (z.B. Gebrauchsvorteile) nicht oder teilweise nicht oder nur in verschlechtertem Zustand zurückgewähren bzw. herausgeben, müssen Sie uns insoweit Wertersatz leisten. Dies kann dazu führen, dass Sie die vertraglichen Zahlungsverpflichtungen für den Zeitraum bis zum Widerruf gleichwohl erfüllen müssen.
Verpflichtungen zur Erstattung von Zahlungen müssen innerhalb von 30 Tagen erfüllt werden. Die Frist beginnt für Sie mir der Absendung Ihrer Widerrufserklärung, für uns mit deren Empfang.
Besondere Hinweise:
Das Widerrufsrecht erlischt vorzeitig, wenn der Vertrag von beiden Seiten auf Ihren
ausdrücklichen Wunsch vollständig erfüllt ist, bevor Sie Ihr Widerrufsrecht ausgeübt haben.
Ende der Widerrufsbelehrung.
Sie können Ihre Vertragserklärung innerhalb von 14 Tagen ohne Angabe von Gründen in Textform (z.B. Brief, Fax, E-Mail) widerrufen.
Die Frist beginnt nach Erhalt dieser Belehrung in Textform, jedoch nicht vor Vertragsabschluss und auch nicht vor Erfüllung unserer
Informationspflichten gem. Art. 246 § 2 in Verbindung mit § 1 Abs. 1 und 2 EGBGB. Zur Wahrung der Widerrufsfrist genügt die rechtzeitige Absendung des Widerrufs.
Der Widerruf ist zu richten an:
Volksbank Immobilien eG, Hauptstraße 78, 79761 Waldshut-Tiengen, Tel. 07741-80 96 99 – 0
E-Mail info@voba-immo.net
Widerrufsfolgen:
Im Falle eines wirksamen Widerrufs sind die beiderseits empfangener Leistungen zurückzugewähren und ggf. gezogene Nutzungen (z.B. Zinsen) herauszugeben. Können Sie uns die empfangene Leistung sowie Nutzungen (z.B. Gebrauchsvorteile) nicht oder teilweise nicht oder nur in verschlechtertem Zustand zurückgewähren bzw. herausgeben, müssen Sie uns insoweit Wertersatz leisten. Dies kann dazu führen, dass Sie die vertraglichen Zahlungsverpflichtungen für den Zeitraum bis zum Widerruf gleichwohl erfüllen müssen.
Verpflichtungen zur Erstattung von Zahlungen müssen innerhalb von 30 Tagen erfüllt werden. Die Frist beginnt für Sie mir der Absendung Ihrer Widerrufserklärung, für uns mit deren Empfang.
Besondere Hinweise:
Das Widerrufsrecht erlischt vorzeitig, wenn der Vertrag von beiden Seiten auf Ihren
ausdrücklichen Wunsch vollständig erfüllt ist, bevor Sie Ihr Widerrufsrecht ausgeübt haben.
Ende der Widerrufsbelehrung.
Mehr anzeigen zum Thema Sonstige Angaben Energieausweis
A+
< 30
A
30 – 50
B
50 – 75
C
75 – 100
D
100 – 130
E
130 – 160
F
160 – 200
G
200 – 250
H
> 250
- Nutzungsart
- Wohnen
- Baujahr lt. Energieausweis
- 2025
- Energieausweis
- ohne Energieausweis
- Energieausweis gültig bis
- 01.01.2035
- Energieeffizienzklasse
- A
- wesentlicher Energieträger
- Luft/Wasser Wärmepumpe
Ihre Ansprechpartnerin
Frau Tanja Scholzen Partner VoBa Hochrhein Immobilien GmbH
- Tel.:
- 0152 0649 7693
- E-Mail:
- scholzen@voba-immo.org
Haupt Str. 78
79761 Waldshut-Tiengen